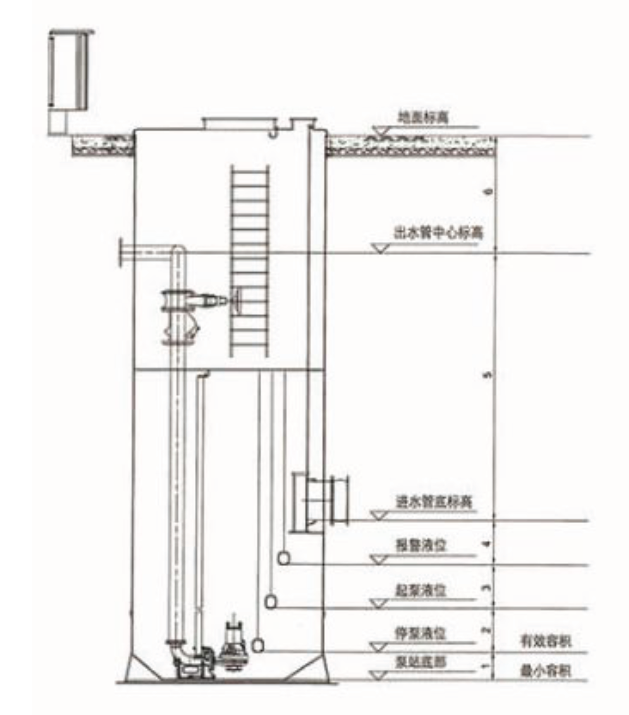
泵站主体主要由玻璃钢井筒、潜水排污泵、格栅系统、提升链、管道、阀门、液位传感器、控制系统和通风系统、进出水软接头等部件组成。
含有杂质的污水由进水口进入格栅系统,粉碎性格栅把杂物粉碎后连同污水一起排入玻璃钢井筒内部;提篮格栅把杂物隔离在格栅内,过滤
的污水进入到玻璃钢筒体内部。随着污水的进入,当玻璃钢井筒内的污水水位达到设定高度时,浮球开关把检测到的信号反馈到控制系统,
控制系统启动排污泵,污水沿着压力管道被排出井筒;当水箱内的污水排出至设定低点位时,浮球开关把检测的信号反馈到控制系统,排污
泵停止工作,此时出水止回阀关闭,阻止排除的污水回流;
当污水再次达到设定的高点位置时,液位浮球把检测到的信号反馈给控制系统,控制系统再次启动排污泵开始工作,一般一台设备内部安装
有两到三台排污泵,交替运行排出井筒内的污水。
有五个液位输出点:高、中、低,超高,超低液位,每台水泵还有故障输出点。控制水泵运行和输出运行信号,低液位停机,中液位单台泵
运行,高液位与超高液位多台水泵同时运行,并发出报警信号。
【性能参数】
◆ 筒体直径:1200-4600 mm
◆ 泵站高度:2000-16000 mm
◆ 筒体材质:GRP / HMPP / SUS304
◆ 处理水量:80-4900 m3/h
◆ 安装方式:干式 / 湿式
【应用范围】
◆ 市政污水
◆ 雨污分流
◆ 海绵城市
◆ 桥梁隧道
◆ 乡村污水提升排放

